GTM-PTNSVTJ3

マンションリフォーム専門店
アールデザインラボ株式会社 
建設業許可番号:宮城県知事 許可(般-3)第22694

受付時間
10:00~17:00
休業日
 不定休

★★お急ぎの方は根立の直通電話へ★★

0120-400-156

61.単身赴任を終え、
家族の時間を取り戻す住まいへ

K様邸リノベーション|出会いからお引渡しまで

LDKパース①
LDKパース②
書斎パース
主寝室パース
子供部屋パース
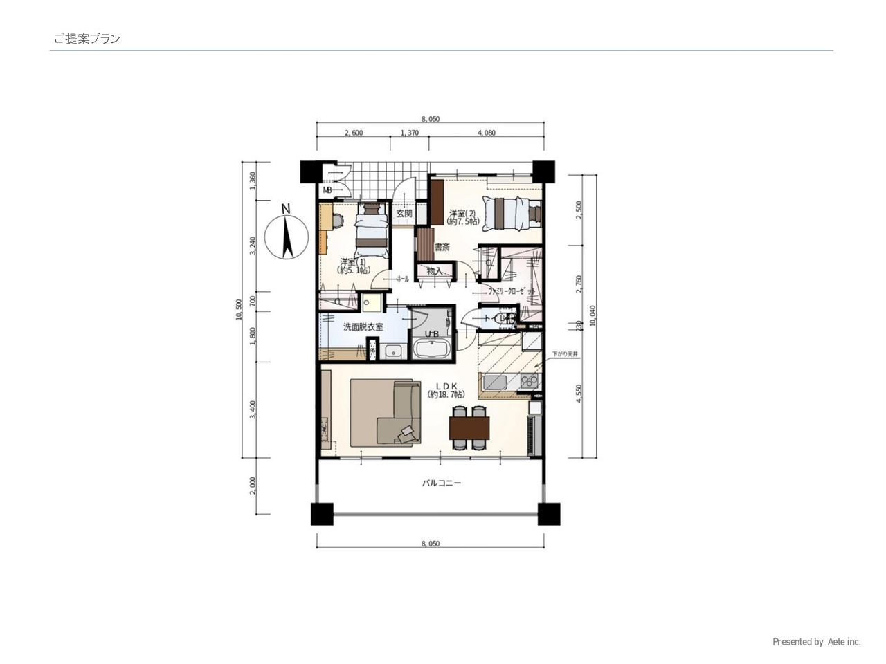
プラン図

今回ご紹介するのは、K様ご家族の「仙台での新しい暮らしのスタート」を形にしたリノベーション事例です。

K様は、旦那さまが長く単身赴任をされていましたが、仙台へ戻られるタイミングで、ご家族そろって新生活を始めることに。
「これからの暮らしを、心から落ち着ける住まいに整えたい」——そんな想いから、住まい全体を見直すリノベーション計画が動き出しました。

実はK様、約1年前からアールデザインラボをネットで見つけ、気になっていたそうです。
一方で、すぐに1社へ決めるのではなく、まずは納得して進めるために、大手から地域の会社まで複数社へ相談し、提案内容を比較検討されました。

その中でK様が大切にされたのは、単に設備や内装を新しくするだけではなく、
**「家族の暮らし方に合う間取りと、空間全体の整え方まで含めて提案してくれるか」**という点でした。
いくつか話を聞く中で、「もっと暮らしに踏み込んだ提案で進めたい」と感じられ、改めてアールデザインラボへご相談をいただきました。

今回の工事は、間取りの見直しからインテリアまで一体で整える、比較的大きなスケールのリノベーション。
そこでアールデザインラボでは、インテリアコーディネーター事務所『アエテ』の今福さんとコラボレーションし、設計・プランニングから工事までをチーム体制で進めることにしました。

  • アエテ(今福さん):間取り設計/インテリアプラン/全体のコーディネート

  • アールデザインラボ:現場管理/施工/品質管理/お引渡しまでの工事全般

この体制により、「デザイン・暮らしやすさの整理」と「現場での実現性・精度」を両輪で進められるのが大きな強みです。

お打ち合わせは、ご要望の整理から始まり、細部の仕様決め、設備機器の選定へ。
キッチン・浴室・洗面などの住設ショールーム訪問も重ねながら、使い勝手、質感、サイズ感、将来の暮らし方まで丁寧に確認し、回数を重ねて一つずつ形にしていきました。

そして工事が完了し、お引渡しのタイミングでK様から、こんなお言葉をいただきました。

「短期間の間に多数の要望を聞いてくださり、ありがとうございます。本当に満足してます。」

私たちにとって、この一言が何よりのご褒美です。
K様ご家族が仙台で新しい生活を安心して始められる住まいになったことを、心から嬉しく思います。

リフォーム工事前の状態

リフォーム工事後の状態

LDK
LDK
玄関/廊下

玄関/廊下

玄関/廊下

玄関/廊下

廊下

廊下

キッチン

キッチン

キッチン

キッチン

キッチン

キッチン

LDK

LDK

寝室/書斎

寝室/書斎

寝室/書斎

寝室/書斎

ウォークインクローゼット

ウォークインクローゼット

ウォークインクローゼット

ウォークインクローゼット

子供部屋

子供部屋

ランドリー室

風呂

ランドリー室

ランドリー室

トイレ

ランドリー室

設計・施工会社

会社名・・・ アールデザインラボ株式会社

所在地・・・〒982-0036 宮城県仙台市太白区富沢南一丁目19-1レイヨントミザワミナミ

電話番号・・・ 022-245-0687

リフォームのご相談依頼はこちらから

お気軽にお問合せください

お電話でのご相談依頼はこちら

0120-400-156

受付時間:10:00~18:00

休業日:不定休